Вставка гибкая для вентиляторов ВРП 140-40
Вставки гибкие круглые и прямоугольные предназначены для предотвращения передачи вибрации от вентилятора к воздуховоду и применяются в вентиляционных системах, перемещающих воздух в интервалах температур от -45°С до +200°С, в зависимости от исполнения и типа вентилятора.
Корпус гибкой вставки в зависимости от исполнения может быть выполнен как из оцинкованной так и из нержавеющей стали, а лента обеспечивающая герметичность канала - из теплостойкого материала.
Особенностью гибкой вставки для вентиляторов ВРП 140-40 является наличие металлической проставки, которая надежно защищает гибкий элемент от повреждений.
Габаритные и присоединительные размеры вставок гибких круглых

|
№ вент. |
Модель гибкой вставки |
D |
D1 |
H |
Размер фланцев |
||
|
К1; ExК1 К1Т200 |
О; Т200; Ex; ExТ200 |
Полоса |
Лист |
||||
|
2,5 |
ВГК-ВРП-2,5 |
150 |
185 |
151 |
224 |
- |
3 |
|
2,8 |
ВГК-ВРП-2,8 |
170 |
205 |
- |
3 |
||
|
3,15 |
ВГК-ВРП-3,15 |
190 |
225 |
25 |
- |
||
|
3,55 |
ВГК-ВРП-3,55 |
219 |
254 |
25 |
- |
||
|
4,0 |
ВГК-ВРП-4,0 |
245 |
280 |
25 |
- |
||
|
4,5 |
ВГК-ВРП-4,5 |
285 |
320 |
25 |
- |
||
|
5,0 |
ВГК-ВРП-5,0 |
320 |
355 |
25 |
- |
||
|
5,6 |
ВГК-ВРП-5,6 |
360 |
395 |
25 |
- |
||
|
6,3 |
ВГК-ВРП-6,3 |
415 |
450 |
25 |
- |
||
|
7,1 |
ВГК-ВРП-7,1 |
465 |
500 |
25 |
- |
||
|
8,0 |
ВГК-ВРП-8,0 |
525 |
560 |
25 |
- |
||
Маркировка:
Вставка гибкая ВГК-ВРП-2,5-Ф/Ф-О
где: ВГК-ВРП – вставка гибкая круглая для радиальных вентиляторов ВРП 140-40;
2,5 – типоразмер вставки гибкой круглой (номер вентилятора);
Ф/Ф – тип соединения вставки гибкой круглой: Ф/Ф – фланец-фланец;
О – исполнение вставки гибкой круглой:
О – общепромышленное; Т200 – теплостойкое; К1 – коррозионностойкое;
К1Т200 – коррозионностойкое теплостойкое; Ex – взрывозащищенное;
ExТ200 – взрывозащищенное теплостойкое;
ExК1 – взрывозащищенное коррозионностойкое.
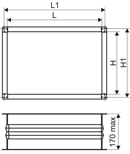
Габаритные и присоединительные размеры вставок гибких прямоугольных

|
№ вент |
Модель гибкой вставки |
L |
H |
L1 |
H1 |
Размер фланца из шины |
|
2,5 |
ВГП-ВРП-2,5 |
195 |
169 |
214 |
188 |
20 |
|
2,8 |
ВГП-ВРП-2,8 |
215 |
187 |
234 |
206 |
20 |
|
3,15 |
ВГП-ВРП-3,15 |
241 |
207 |
260 |
226 |
20 |
|
3,55 |
ВГП-ВРП-3,55 |
269 |
233 |
288 |
252 |
20 |
|
4,0 |
ВГП-ВРП-4,0 |
299 |
260 |
318 |
279 |
20 |
|
4,5 |
ВГП-ВРП-4,5 |
335 |
290 |
354 |
309 |
20 |
|
5,0 |
ВГП-ВРП-5,0 |
368 |
320 |
387 |
339 |
20 |
|
5,6 |
ВГП-ВРП-5,6 |
410 |
356 |
429 |
375 |
20 |
|
6,3 |
ВГП-ВРП-6,3 |
461 |
397 |
480 |
416 |
20 |
|
7,1 |
ВГП-ВРП-7,1 |
531 |
461 |
560 |
490 |
30 |
|
8,0 |
ВГП-ВРП-8,0 |
596 |
516 |
625 |
545 |
30 |
Маркировка:
Вставка гибкая ВГП-ВРП-2,5-Ш/Ш-Т200
где: ВГП-ВРП – вставка гибкая прямоугольная для радиальных вентиляторов ВРП 140-40;
2,5 – типоразмер вставки гибкой прямоугольной (номер вентилятора);
Ш/Ш – тип соединения вставки гибкой прямоугольной: Ш/Ш - шина-шина;
Т200 – исполнение вставки гибкой круглой:
О – общепромышленное; Т200 – теплостойкое; К1 – коррозионностойкое;
К1Т200 – коррозионностойкое теплостойкое; Ex – взрывозащищенное;
ExТ200 – взрывозащищенное теплостойкое;
ExК1 – взрывозащищенное коррозионностойкое.
Не представленные в наличии модели доступны к поставке под заказ
Оповестить о поступлении
Всю необходимую информацию также можно получить по телефону «горячей линии»
+ 7 800 200 93 96или по телефону
+7 800 505 08 67 получить консультацию